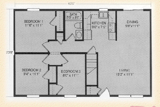
COLUMBIA RANCH
cchwebsite2040.gif
cchwebsite2039.jpg
cchwebsite2041.jpg
cchwebsite2042.jpg
  • porches, additions and garages not included