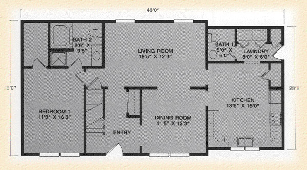
PRESTON CAPE
cchwebsite2050.jpg
cchwebsite2052.jpg
cchwebsite2051.jpg
  • porches, additions and garages not included